Federal Hill Apartment
Baltimore, Maryland
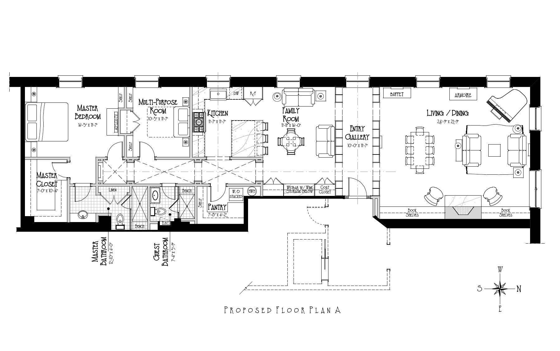
The design was created to unify an existing apartment that lacked stylistic consistency. Entering into a new vestibule that will also function as a library, one can choose to turn to the living room on the left or into the great room on the right. The great room consists of a split family room and kitchen, leading to a hallway to the bedrooms beyond.
Federal Hill Apartment
Back to Apartments